Солигорский район

Однокомнатная квартира г. Солигорск, ул. Строителей, 26 86 190 руб. 25 500 $

Кол-во комнат1
Этаж/Всего этажей3 / 5
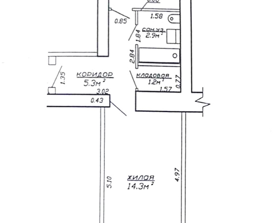
Площадь общая/жилая/кухни29.6м2/14.3м2/5.9м2
Тип домаКирпичный
Адресг. Солигорск, ул. Строителей, 26

В Солигорске, Минская область, по улице Строителей 26, продаётся однокомнатная квартира. Находится на 3-ем этаже в пятиэтажном доме. Год постройки 1990. Высота потолков 2.50.

Квартира очень светлая с отличной энергетикой…

Дом кирпичный. Площадь (общ.СНБ/жил/кух) :30.5/14.3/5.9

Домофон.

Санузел совмещённый.

 Квартира требует требует ремонта, вы сможете воплотить свои идеи.

Имеется кладовка.

 Квартира имеет очень удачную планировку: окна выходят на противоположные стороны дома: одно во двор(в спальне балкон) второе (кухня) на тыльную сторону дома.

Зимой в квартире не холодно, летом не жарко. Очень зелёный район. Около подъезда парковочные места.

В шаговой доступности продуктовые магазины, остановки общественного транспорта, детский сад, парк, торговые центры, кафе, ресторан, вокзал.

Подъезд в хорошем состоянии, чистый, ухоженный. 
Возможен торг!

Звоните или пишите. Записывайтесь на просмотр.

Похожие объекты

Московский район

57/100 выделенной доли в квартире Либкнехта, 80к2

1комн.
2 / 5этаж
41.6м2
92 950 руб. 27 500 $ Подробнее
Ленинский район

Однокомнатная квартира г. Минск, Лучины, 6

1комн.
4 / 7этаж
37.6м2
253 500 руб. 75 000 $ Подробнее
Московский район

1/2 доли, пр-т Дзержинского, 119

4комн.
22 / 24этаж
94.7м2
236 262 руб. 69 900 $ Подробнее
Октябрьский район

Однокомнатная квартира г. Минск, Кижеватова, 62/в

1комн.
14 / 16этаж
53.4м2
260 260 руб. 77 000 $ Подробнее

Получите бесплатную консультацию

Оставьте номер и мы свяжемся с Вами

Оставьте вашу заявку

Наши специалисты свяжутся с вами в ближайшее время

Однокомнатная квартира г. Солигорск, ул. Строителей, 26
Спасибо за заявку

Мы обязательно с Вами свяжемся!

Нажимая на кнопку «Принять», я даю свое согласие на обработку моих персональных данных в соответствии с Политикой в отношении обработки файлов-cookies.
Настройка файлов-cookies