Московский район

Комната г. Минск, ул. Есенина, 131 101 400 руб. 30 000 $

Кол-во комнат3
Этаж/Всего этажей4 / 9
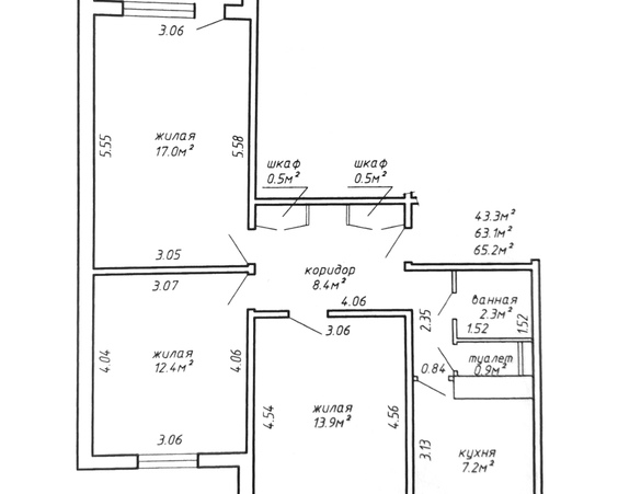
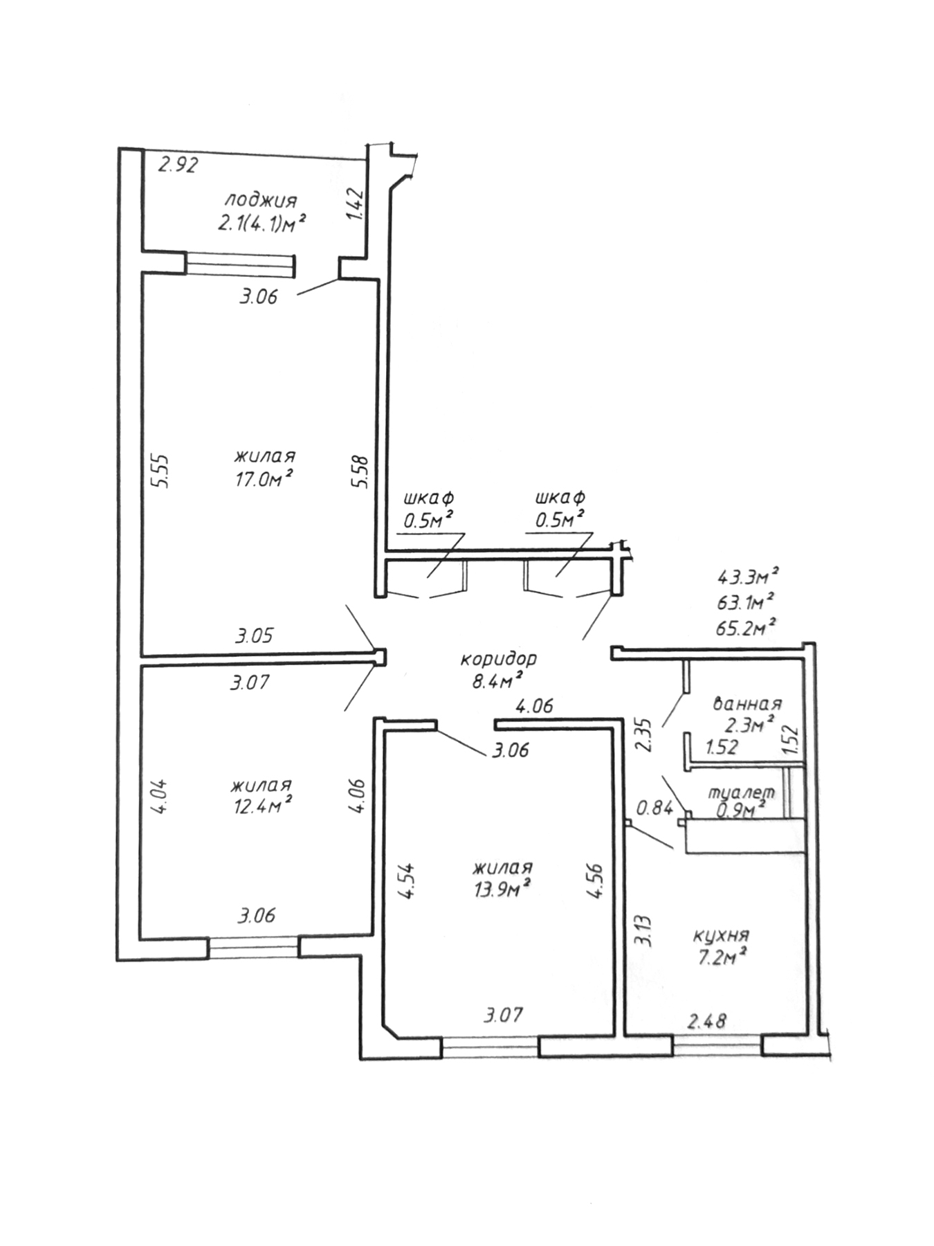
Площадь общая/жилая/кухни63.1м2/17м2/7.2м2
Тип домаПанельный
Адресг. Минск, ул. Есенина, 131

 

Продается просторная выделенная комната в трёхкомнатной квартире. 47/100 долей ( комната 17 метров с лоджией площадью 2.1 метр) по адресу ул. Есенина 131 (Микрорайон Малиновка).

Квартира расположена на 4 этаже, девятиэтажного дома.Общая площадь квартиры 63.1. Жилая площадь 43.3. Площадь кухни: 7.2 метра.Высота потолка: 2.52. 
Дом расположен в районе с развитой инфраструктурой. В жилом квадрате несколько детских садов, общеобразовательная школа.
В шаговой доступности  магазины и объекты сервисного обслуживания и досуга. До остановки общественного транспорта две минуты ходьбы. Удобное транспортное сообщение и выезд на МКАД.
Просмотр в удобное для вас время!

ООО "Центр риэлтерских услуг "Квартиры Столицы"
УНП: 192761975
Лицензия 02240/329
от 24.02.2017, Министерство юстиции РБ

Похожие объекты

Московский район

57/100 выделенной доли в квартире Либкнехта, 80к2

1комн.
2 / 5этаж
41.6м2
92 950 руб. 27 500 $ Подробнее
Ленинский район

Однокомнатная квартира г. Минск, Лучины, 6

1комн.
4 / 7этаж
37.6м2
253 500 руб. 75 000 $ Подробнее
Московский район

1/2 доли, пр-т Дзержинского, 119

4комн.
22 / 24этаж
94.7м2
236 262 руб. 69 900 $ Подробнее
Октябрьский район

Однокомнатная квартира г. Минск, Кижеватова, 62/в

1комн.
14 / 16этаж
53.4м2
260 260 руб. 77 000 $ Подробнее

Получите бесплатную консультацию

Оставьте номер и мы свяжемся с Вами

Оставьте вашу заявку

Наши специалисты свяжутся с вами в ближайшее время

Комната г. Минск, ул. Есенина, 131
Спасибо за заявку

Мы обязательно с Вами свяжемся!

Нажимая на кнопку «Принять», я даю свое согласие на обработку моих персональных данных в соответствии с Политикой в отношении обработки файлов-cookies.
Настройка файлов-cookies