Двухкомнатная квартира г. Быхов, ул. Гришина, д. 15 84 162 руб. 24 900 $

Кол-во комнат2
Этаж/Всего этажей2/5
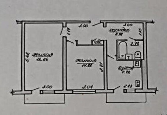
Площадь общая/жилая/кухни47,9м2/28,1м2/7,7м2
Тип домаПанельный
Адресг. Быхов, ул. Гришина, д. 15

 

Двухкомнатная квартира в г. Быхов

 

Адрес:  г. Быхов, ул. Гришина, д. 15

Количество комнат 2,в том числе раздельных 2

Метраж квартиры   общ. 47.9 жил. 28.1 кухня 7.7 м2

2 этаж 5-этажного панельного дома.

Год постройки 1978

Состояние квартиры: нормальный ремонт.

Кухня: установлена современная газовая плита, на полу линолеум на стенах обои, потолок окрашен. Есть вся необходимая кухонная мебель и техника.

Лоджия. Выход из кухни и из спальни.

Санузел раздельный. Плитка старого формата.

Жилые комнаты: Все комнаты раздельные в аккуратном состоянии. Пол деревянный, на стенах обои, потолок окрашен, установлены пластиковые стеклопакеты. Есть возможность организовать детскую и спальню.

Инфраструктура: развитая. В шаговой доступности детский сад, современная спортивная площадка, продуктовые магазины, поликлиника и остановка общественного транспорта.

 



ООО "Центр риэлтерских услуг "Квартиры Столицы"
УНП: 192761975
Лицензия 02240/329
от 24.02.2017, Министерство юстиции РБ

Получите бесплатную консультацию

Оставьте номер и мы свяжемся с Вами

Оставьте вашу заявку

Наши специалисты свяжутся с вами в ближайшее время

Двухкомнатная квартира г. Быхов, ул. Гришина, д. 15
Спасибо за заявку

Мы обязательно с Вами свяжемся!

Нажимая на кнопку «Принять», я даю свое согласие на обработку моих персональных данных в соответствии с Политикой в отношении обработки файлов-cookies.
Настройка файлов-cookies