Центральный район

Двухкомнатная квартира г. Минск, Киселева, 17 1 081 262 руб. 319 900 $

Кол-во комнат2
Этаж/Всего этажей4 / 8
Площадь общая/жилая/кухни58.1м2/46.3м2/м2
Тип дома Каркасно-блочный
Адресг. Минск, ул. Киселева, 17

Адрес: Киселева 17

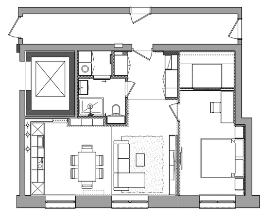
Количество комнат: 2. Кухня гостиная и полноценная спальня.

Тип планировки индивидуальный проект.

Метраж квартиры   общ. 58.1 жил. 46.3 м2

В подъезде 2  лифта Sсhindler

Этаж: 4 из 8

Придомовая территория огорожена и охраняется, парковочные места выделены исключительно для жильцов дома.

Год постройки: 2016.

Высота потолков: 3.35м

Состояние квартиры: выполнен отличный ремонт по дизайн проекту из качественных материалов и с импортной техникой. Перепланировка узаконена, на полу итальянская плитка и ламинат высокого класса, зона плитки с подогревом, установлены межкомнатные двери, каменные подоконники, установлен кондиционер, стены окрашены, с элементами декора, потолок гипсокартон, проходная электрика и большое количество зон света. Вся мебель и техника остается новому владельцу.

Кухня-гостиная: площадью 27 м2. Пространство визуально разделено на зону кухни и гостиной, большое количество света. Во всю стену установлен шкаф-витрина с подсветкой, каменная столешница, установлена вся необходимая мебель и техника. Микроволновая печь, духовой шкаф, индукционная панель и посудомоечная машина марки Bosh, вытяжка Elica, холодильник Liebherr. Вся техника привезена из Европы.

В части обеденной группы расположен большой стол и комфортабельные кресла.

В зоне гостиной размещен удобный раскладной диван и ТВ зона – идеальное место для сбора гостей или для отдыха после рабочего дня.

Спальня: площадью 19.3 м2. Идеальное место для вашего отдыха с просторной гардеробной и возможностью организовать рабочее место.Установлена полноценная двуспальная кровать, матрас Vegas, на стене телевизор.

За раздвижными дверями скрывается просторная гардеробная по индивидуальному проекту. Для хранения вещей места будет достаточно – проверено.

Сан.узел: совмещенный, площадью 6.5 м2 из них 1.9 м2 выделены на зону постирочной.

Сан.узел в итальянской плитке, вся сантехника Grohe, установлен бойлер Electrolux, душевая кабина, инсталляция, умывальник с тумбой, зеркало с подсветкой, стиральная и сушильная машины марки LG.

Коридор и прихожая: 5.3 м2. По обе стороны установлены шкафы для хранения, на полу плитка с подогревом видеодомофон.

Тамбур: тамбур на три квартиры с порядочными соседями. По совместной инициативе была уложена плитка на пол, оштукатурены стены, установлены одинаковые входные двери в каждую квартиру и общая дверь в тамбур с фэйс-айди, что является гарантий безопасности и комфорта.

Подъезд: вход в подъезд только для своих и осуществляется с применением фейс-айди. Уютное лобби, всё в плитке. 

Инфраструктура:

Вы в центре Минска. Причем в лучшей, «зелёной» части.

Начиная с того, что Ваша квартира огорожена от суеты территорией двух охраняемых посольств и заканчивая парковой зоной реки Свислочь в трех минутах ходьбы.

В этой части центра нет суеты и толчеи. С охраняемой парковки Вы всегда можете двигаться на своем автомобиле.

НО вот что мало кто знает: семьей жить в центре можно абсолютно прекрасно:

Здесь средоточие не только государственных Гимназий и детских садов, но и частных образовательных центров.

 

Резюме: это лучшее что может дать рынок. Идеальный вариант для вложения или самостоятельного проживания! Убедись в этом лично – звоните.



ООО "Центр риэлтерских услуг "Квартиры Столицы"
УНП: 192761975
Лицензия 02240/329
от 24.02.2017, Министерство юстиции РБ

Похожие объекты

Октябрьский район

Двухкомнатная квартира г. Минск, ул.Теслы,23

2комн.
12 / 25 этаж
30.5м2
277 160 руб. 82 000 $ Подробнее
Советский район

Двухкомнатная квартира г. Минск, Кольцова, 12, корп.3

2комн.
4 / 5 этаж
41.7м2
197 730 руб. 58 500 $ Подробнее

Получите бесплатную консультацию

Оставьте номер и мы свяжемся с Вами

Оставьте вашу заявку

Наши специалисты свяжутся с вами в ближайшее время

Двухкомнатная квартира г. Минск, Киселева, 17
Спасибо за заявку

Мы обязательно с Вами свяжемся!

Нажимая на кнопку «Принять», я даю свое согласие на обработку моих персональных данных в соответствии с Политикой в отношении обработки файлов-cookies.
Настройка файлов-cookies