Партизанский район

Трехкомнатная квартира г. Минск, ул. Карвата 10А 499 902 руб. 147 900 $

Кол-во комнат3
Этаж/Всего этажей7 / 19
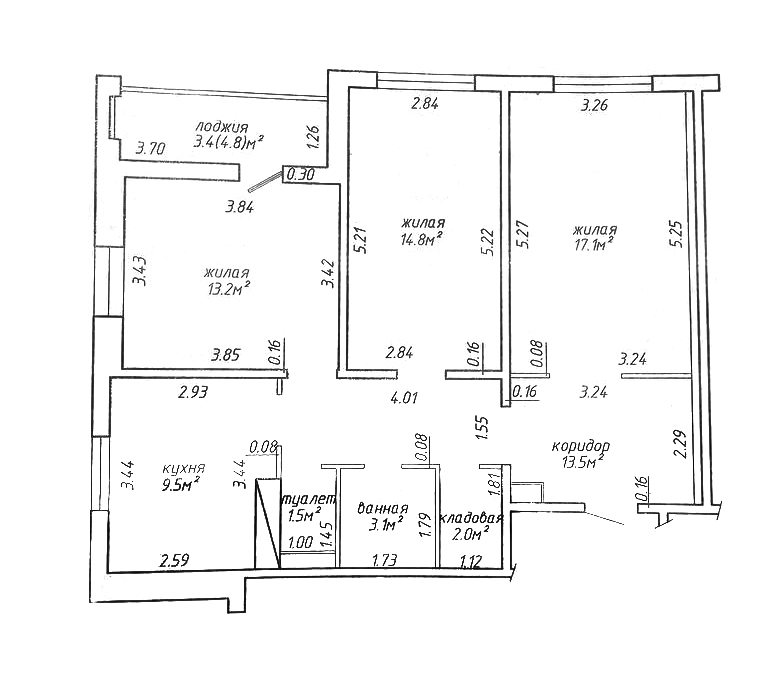
Площадь общая/жилая/кухни74.7м2/45.1м2/9.5м2
Тип домаПанельный
Адресг. Минск, ул. Карвата 10А

Адрес: г. Минск, ул. Карвата, д. 10А

Количество комнат 3,в том числе раздельных 3

Тип планировки:  новостройка

Метраж квартиры по СНБ: 78.1 общ. 74.7 жил. 45.1 кухня 9.5 м2

7 этаж 19-этажного панельного дома.

Год постройки 2018.

Дом построен за счет дольщиков.

Высота потолков: 2.65 метра

Состояние квартиры: хороший ремонт. Использованы качественные материалы и пастельные тона – актуальный тренд на все времена.

Натяжной потолок, на полу ламинат, на стенах аккуратные обои, установлены качественные межкомнатные двери.

Кухня: площадью 9.5 м2. Пространство используется по максимуму: часть отведена под зону готовки, установлена угловая кухонная мебель и полное   наполненные техникой, включая посудомоечную машину.

А вторая часть отведена для обеденной зоны и приема пищи.

Зал: 13.2 м2, средоточие для гостей и семьи или просто уютное место для любимых занятий: в пространстве органично вписался диван для просмотра фильмов и телевизор. На стенах аккуратные обои, на полу ламинат, потолок натяжной.

С выходом на просторную лоджию.

Лоджия: 4.8 м2, идеальная зона для отдыха или рабочее пространство. Площадь позволяет организовать любую зону для вашего комфорта. На лоджии стены окрашены и проведена электрика.

Спальня: оптимального размера для сна на двуспальной кровати с большим количеством мест для хранения, которые выстроены аркой при входе в комнату.

Детская: всё большее – детям. Просторная комната правильной формы с грамотной организацией пространства. Имеется полноценное рабочее место, спальные места, зоны для хранения вещей, игровое пространство и спортивный уголок.

Сан.узел: два! Гостевой туалет и просторный совмещённый санузел для хозяев. 

В аккуратной плитке. Установлена качественная сантехника, инсталляция, ванна, большой умывальник, стиральная машина и места для хранения.

Совмещенный санузел площадью 5.1 м2.

Туалет площадью 1.5м2, установлен унитаз и умывальник.

Прихожая и коридор. Сочетание практичности и гостеприимности: твои вещи «исчезают» в просторном встроенном шкафу, а сам ты плавно перемещаешься по всей квартире по большому коридору, на стенах которого можно разместить семейные фотографии или любимые картины.

Инфраструктура:

Идеальный вариант для семьи. В шаговой доступности две школы, два детских сада, поликлиника, магазины со всем необходимым от продуктов до бытовой химии и самое главное – район утопает в зелени и шаговой доступности лесопарк Степянка для вечерних прогулок или утренних пробежек, а также остановки общественного транспорта.

 

Резюме: когда нужна квартира для жизни без вложений – нашему варианту мало конкурентов. Приходите и убедитесь сами!

ООО "Центр риэлтерских услуг "Квартиры Столицы"
УНП: 192761975
Лицензия 02240/329
от 24.02.2017, Министерство юстиции РБ

Похожие объекты

Мядельское направление, 4.6 км от МКАД

Трехкомнатная квартира аг.Большевик,ул.Армейская,5

3комн.
4/5этаж
67м2
248 430 руб. 73 500 $ Подробнее

Получите бесплатную консультацию

Оставьте номер и мы свяжемся с Вами

Оставьте вашу заявку

Наши специалисты свяжутся с вами в ближайшее время

Трехкомнатная квартира г. Минск, ул. Карвата 10А
Спасибо за заявку

Мы обязательно с Вами свяжемся!

Нажимая на кнопку «Принять», я даю свое согласие на обработку моих персональных данных в соответствии с Политикой в отношении обработки файлов-cookies.
Настройка файлов-cookies