Дом, ул. Васнецова, 37 1 047 462 руб. 309 900 $

Площадь общая/жилая/кухни320,3м2/210м2/17,7м2
Материал стен
Кол-во уровней2
Площадь участка4,35 соток
Расстояние от МКАД
Направление

 

Адрес: г. Минск, ул. Васнецова, д. 37

Район: Заводской

Материал дома: дерево, облицовано бессер блоками. Фундамент: бетон. Кровля: металлочерепица

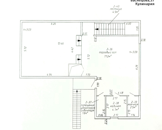
Дом двухуровневый плюс подвал и уникальная пристройка – торговое помещение (кулинария).

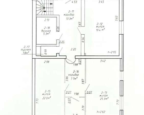
Количество комнат 5, в том числе раздельных 5

Метраж дома: общ. 320.3м2 жил.210 м2 кухня 17.7 м2

Год постройки 1964. В 2000 году произведена полная реконструкция дома.  

Участок: 4.35 соток в аренду.

Коммуникации: электричество, газ, водоснабжение, канализация – всё центральное разведено по дому, подключено и эксплуатируется.

Отопление от газового котла.

Дом: построен из дерева по индивидуальному проекту.

Высота потолков. Первый этаж- 2.93м, второй от 2.62 до 2.95 м.

Степень готовности: 100%. Дом жилой. Везде установлены стеклопакеты, отделка производилась при реконструкции, в разное время и из разных материалов. На полу паркет, в некоторых комнатах ковролин, двери из массива, деревянная лестница, на стенах обои, жидкие обои, потолок панели и гипсокартон, санузлы в плитке, есть зоны теплого пола.

Кухня: 17.7 м2, угловая, полностью укомплектована мебелью из массива и необходимой техникой: духовой шкаф, посудомоечная машина, вытяжка, газовая панель.

Полноценная рабочая зона для приготовления пищи и комфортная обеденная группа.

Светло и обзорно. Установлен большой стол, а также на кухне расположен газовый компактный котел.

Гостиная: площадью 43.3м2 Проход из прихожей, поэтому потоки гостей будут перемещаться комфортно. В окнах стеклопакеты, на полу паркет. Потолок гипсокартон. Пространство позволяет комфортно разместить гостей за обеденным столом, а после переместиться в ТВ зону для просмотра любимых фильмов.

Жилые комнаты: в доме 4 (четыре) изолированные комнаты (вместе с гостиной – 5).

На первом этаже расположена просторная спальня площадью 22.5 м2. Пространство включает в себя место для сна и места для хранения необходимых вещей, в случае проживания большой семьи, весь первый этаж можно оставлять для родителей, а на втором располагать детские зоны.

Остальные находятся на втором этаже. Все комнаты полноценного метража (19.4м2, 15.3 м2, 22,0 м2), с отделкой, поэтому универсальны в использовании – детская, гостевая, кабинет или хозяйская спальня.

Балкон: открытое пространство площадью 3.8 м2, выходит во двор, расположен на втором этаже, возле лестницы.

Гардероб: на втором этаже площадью 6.9 м2. Полноценная комната для хранения всего необходимого: вещи, коробки, детские игрушки – места хватит на всё.

Санузлы: В доме предусмотрено 2 (два) раздельных санузла: отделаны стандартной плиткой, на первом этаже установлена просторная ванна, на втором – душевая.

Прихожая: уютная входная группа с возможностью размещения верхней одежды, обуви и мелочей.  

Около входа в дом расположена небольшая пристройка со входом в подъезд, которая идеально подойдет для хранения садового инвентаря или станет уютным местом для домашних посиделок.

Кулинария: пристройка площадью248.7 м2 и в два этажа. Предполагаемое назначение – кулинария, которая полностью готова к эксплуатации.Если вы занимаетесь производством готовых обедов, кондитерским бизнесом и не хочется искать рабочее место далеко от дома? То лучшее предложения и не найти!

При грамотном подходе, в пристройке можно организовать прибыльный общепит, чтобы проходящие мимо заходили по утрам за свежим кофе, а вечером возвращались к вам на вкусный ужин, ведь имеется отдельный вход в кулинарию с улицы.

В любой момент объект можно переоборудовать и использовать в коммерческих целях. Например, в качестве хостела пансионата, киберклуба или для офиса своей компании.

Подъездные пути и транспорт: в шаговой доступности остановка общественного транспорта, а рядом с домом проходят трамвайные пути. Легко и быстро попадете в любую точку города и к станциям метро.

Инфраструктура: в шаговой доступности парковая зона, детские сады, школы, продуктовые магазины, а у ст. метро Партизанская можно встретить ТЦ Призма и универмаг Беларусь.  

Резюме: не нужно искать за городом идеал, когда это можно без компромиссов сделать в любимом городе. Приезжайте на осмотр!

Больше фото отправим по запросу.

ООО "Центр риэлтерских услуг "Квартиры Столицы"
УНП: 192761975
Договор 238/1 от 15.10.2024
Лицензия 02240/329
от 24.02.2017, Министерство юстиции РБ

Похожие объекты

Слуцкий район

Дом, аг. Леньки, ул. Центральная

47м2
25 соток
аг. Леньки от МКАД
20 280 руб. 6 000 $ Подробнее
Смолевичский район

Дача с/т "Автотранспортник-2002"

42,5м2
4,39 соток
19 км. от МКАД
37 180 руб. 11 000 $ Подробнее
Молодеченский район

Участок с/т "Планета 2001"

м2
7.6 соток
от МКАД
15 886 руб. 4 700 $ Подробнее
Молодеченский район

Участок с/т "Купалинка МАЗ", Молодеченский р-н

м2
11 соток
Молодечненское, 44 км от МКАД от МКАД
7 774 руб. 2 300 $ Подробнее

Получите бесплатную консультацию

Оставьте номер и мы свяжемся с Вами

Оставьте вашу заявку

Наши специалисты свяжутся с вами в ближайшее время

Дом, ул. Васнецова, 37
Спасибо за заявку

Мы обязательно с Вами свяжемся!

Нажимая на кнопку «Принять», я даю свое согласие на обработку моих персональных данных в соответствии с Политикой в отношении обработки файлов-cookies.
Настройка файлов-cookies